Mmmm..... cookies...

Afdeling

Højriisparken
161-0

Højriisparken 1, 3, 5, 7, 9, 11, 13, 15, 17

Boliginfo

Adresser

Højriisparken 1 - 17, 2 - 18,
9430 Vadum

Boligtype

ic_arrow_diagonal_black_24px * * Nogle eller alle boliger i denne afdeling udlejes ikke af Lejerbo. Se hvordan du skriver dig op til dem under 'Flere oplysninger'.

Antal boliger

9

Energimærke

D

Andet

Altan: Nej
Elevator: Nej
Husdyr tilladt: Ja

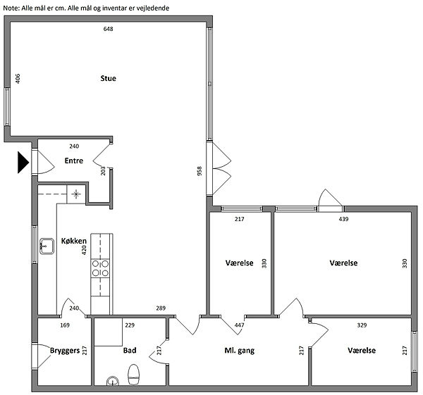
Værelser

5

Størrelser

120 m2

Husleje

8257 kr.

Indskud

20286 kr

Ventetid

0 mdr. - 3 år

Der er karenstid på 2 år.

Der er fortrinsret for nuværende beboere ved skilsmisse, dog ikke i samme afd.

Gå til afdelingens hjemmeside

Lignende boliger

Vestbyen

Dannebrogsgade 18, 34 m. fl.

9000 Aalborg

Værelser

1-3

Areal i m2

42-84

Husleje i kr.

4505-8422

Ventetid

0 mdr.

Fr. Nansensvej

Fr. Nansensvej 3 - 25 m. fl.

9210 Aalborg SØ

Værelser

1-4

Areal i m2

33-93

Husleje i kr.

2341-7061

Ventetid

0 mdr.-3 år.

Smedegården

Rebildparken 44 - 46 m. fl.

9220 Aalborg Øst

Værelser

1-3

Areal i m2

49-87

Husleje i kr.

4789-9811

Ventetid

0-3 mdr.