Mmmm..... cookies...

Afdeling

Paltholmparken
243-0

Paltholmpark 4, 7, 8, 10, 19, 20, 21, 25, 38
Paltholmpark 1, 3, 5, 6, 9, 11, 12, 13, 14, 15, 16, 17, 18, 22, 23, 24, 26, 28, 29, 30, 31, 32, 33, 34, 35, 36, 37, 39, 40, 41, 42, 43, 44, 45, 46, 47, 49, 50, 51, 52, 54, 55, 56, 57, 58, 59, 60, 61, 63

Boliginfo

Adresser

Paltholmpark 1 - 63, 2 - 60,
3520 Farum

Boligtype

ic_arrow_diagonal_black_24px * * Nogle eller alle boliger i denne afdeling udlejes ikke af Lejerbo. Se hvordan du skriver dig op til dem under 'Flere oplysninger'.

Antal boliger

58

Energimærke

B

Andet

Altan: Nej
Elevator: Nej
Husdyr tilladt: Ja

Værelser

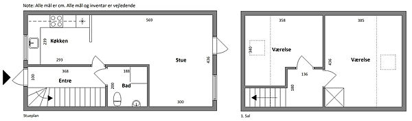
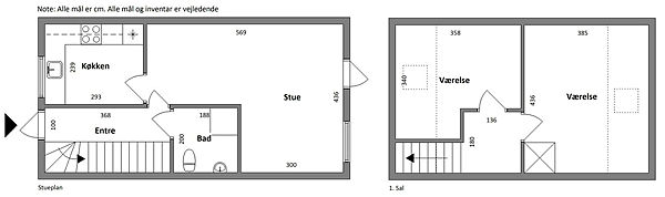
3

Størrelser

79 m2

Husleje

7043-7668 kr.

Indskud

18912 kr

Ventetid

10 år - 12 år

Udlejning af boligerne i denne afdeling fordeler sig således, at 60 % af de ledige boliger udlejes efter fleksible kriterier.

Den interne venteliste går forud for fleksibel udlejning. Interne i egen organisation skal opfylde de fleksible kriterier. Hvis manflytter i en billigere bolig skal de fleksible kriterier ikke opfyldes.

Nedenfor ses den forventede ventetid for fleksibel udlejning:

3. rum - vi forventer p.t. mere end 5 års ventetid.

Nedenfor ses den forventede ventetid for interne ansøgere:

3 rum - 2-3 år.

Den forventede ventetid er en beregning, baseret på flere faktorer, herunder fraflytninger, aktive ansøgere m.v. og kan derfor ændre sig.

Kommunen har den fulde anvisningret til ungdomsboligerne.

Gå til afdelingens hjemmeside

Lignende boliger

Frederiksborgvænget 8A-F, 10-30

Frederiksborgvej 10 - 30, 8 A-F

3520 Farum

Værelser

1-5

Areal i m2

36-113

Husleje i kr.

2883-8958

Ventetid

6-35 år.

Frederiksborgvænget II

Frederiksborgvej

3520 Farum

Værelser

1-3

Areal i m2

37-79

Husleje i kr.

3946-8132

Ventetid

Ikke angivet