Mmmm..... cookies...

Afdeling

Vestergade, Jernbanegade m.fl.
174-0

Jernbanegade 4F
Jernbanegade 4A. Etage/dør: 4. th.
Vestergade 2F. Etage/dør: 1. tv.
Vestergade 2F. Etage/dør: 2. tv.
Jernbanegade 4A. Etage/dør: 4. tv.
Jernbanegade 4A. Etage/dør: 1. tv., 2. tv., 3. tv.
Jernbanegade 4S
Jernbanegade 4R
Bovangen 56, 60, 64, 66, 68, 70, 72, 76
Bovangen 61A, 61B, 61C, 61D
Bovangen 59A, 59B, 59C, 59D
Elvervangen 3B, 3C, 3G, 3H, 3I, 3J
Rosenvangen 35B, 35C, 37A, 37B, 39B, 41A, 43B, 45B, 45C, 45D, 45E, 45F
Vesterbro 37A, 37B, 37C, 37F, 37I
Agerstien 5, 10, 16, 21, 26, 32
Agerstien 11, 15, 27, 31

Boliginfo

Adresser

Agerstien 1-33,
4660 Store Heddinge

Bovangen 55A-63B, 56-78,
4660 Store Heddinge

Elvervangen, Hellested 3A-J,
4652 Hårlev

Kridthuset, Jernbanegade 4 A-T,
4660 Store Heddinge

Malthuset, Vestergade 2 E-F,
4660 Store Heddinge

Rosenvangen 35A-41B,
4660 Store Heddinge

Vesterbro 37,
4660 Store Heddinge

Boligtype

Antal boliger

58

Energimærke

D

Andet

Altan: Nej
Elevator: Nej
Husdyr tilladt: Ja

Værelser

3

Størrelser

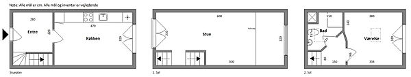
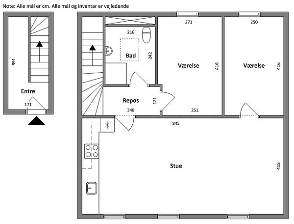
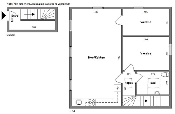
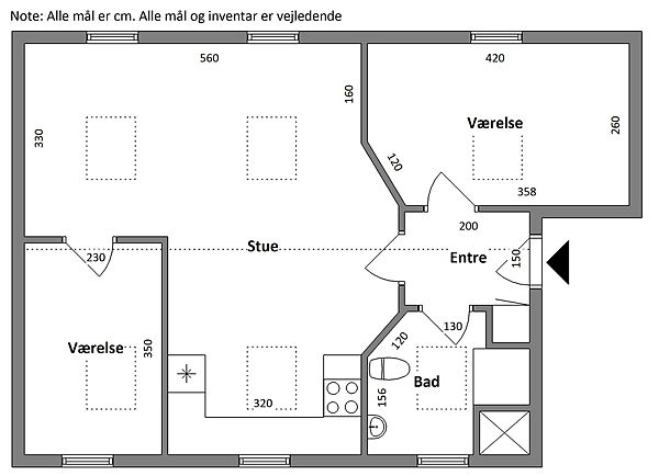
67-96 m2

Husleje

5876-7936 kr.

Indskud

18025-39100 kr

Ventetid

1 år 6 mdr. - 3 år

De forventede ventetider for ansøgere på ventelisten med fleksible kriterier er:

2 vær. 1½ - 3 år
3 vær. 6 - 7 år

Gå til afdelingens hjemmeside

Lignende boliger

Bovangen 23

Bovangen 23

4660 Store Heddinge

Værelser

Areal i m2

Husleje i kr.

Ventetid