Mmmm..... cookies...

Afdeling

Ringen
285-0

Ringen 9, 17, 27, 39, 41, 46, 53, 63, 79, 81, 91, 101, 113, 115, 127, 137, 145, 155, 163, 173, 185

Boliginfo

Adresser

Ringen 10 - 82, 5 - 189,
4600 Køge

Boligtype

Antal boliger

60

Energimærke

Andet

Altan: Nej
Elevator: Nej
Husdyr tilladt: Ja

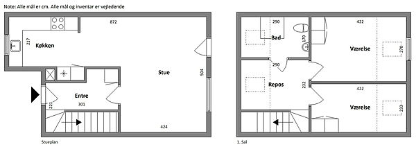
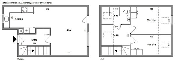
Værelser

3

Størrelser

74-86 m2

Husleje

8102-9262 kr.

Indskud

18596-20313 kr

Ventetid

10 år - 12 år

Køge Kommune har anvisningsret til 30% af de ledige boliger i denne afdeling.

Nedenfor ses den forventede ventetid for interne ansøgere:

2 rums - 4-6 år.
3 rums - 4-6 år.
4 rums - 3-5 år.

Den forventede ventetid er en beregning, baseret på flere faktorer, herunder fraflytninger, aktive ansøgere mv. og kan derfor ændre sig.

Gå til afdelingens hjemmeside

Lignende boliger

Smedegården

Søndre Centervej 2 - 106

4600 Køge

Værelser

1-2

Areal i m2

38-50

Husleje i kr.

3978-5082

Ventetid

2-4 år.

Fasanparken

Fasanskellet 12 - 32

2635 Ishøj

Værelser

2-4

Areal i m2

68-100

Husleje i kr.

6797-12007

Ventetid

Ikke angivet

Fasanvangen

Fasanvangen 1 - 18

2635 Ishøj

Værelser

4

Areal i m2

107-112

Husleje i kr.

11432-11972

Ventetid

Ikke angivet