Mmmm..... cookies...

Afdeling

Tøjhushavekvarteret
692-0

Marienlundsgade 10. Etage/dør: 1. th., 2. th.
Marienlundsgade 10. Etage/dør: 1. mf., 2. mf., 3. mf.

Boliginfo

Adresser

Dronningensgade 19 A-B,
8900 Randers C

Marienlundsgade 10-14,
8900 Randers C

Niels Brocks Gade 21-23,
8900 Randers C

Niels Ebbesens Gade 20,
8900 Randers C

Prinsessegade 2,
8900 Randers C

Tøjhushavevej 10, 4 - 5,
8900 Randers C

Boligtype

Antal boliger

5

Energimærke

Andet

Altan: Ja
Elevator: Ja
Husdyr tilladt: Ja

Værelser

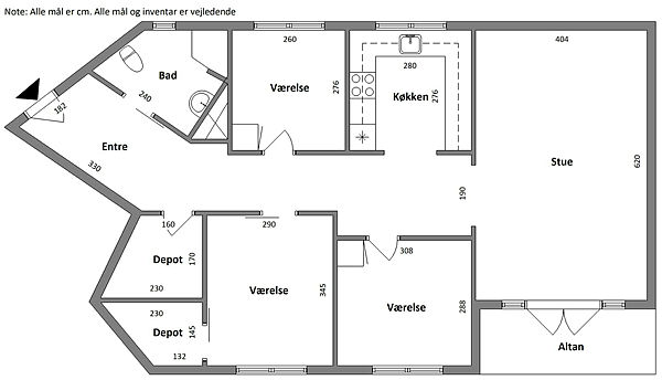
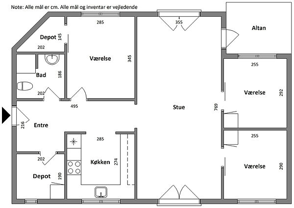
4

Størrelser

109-117 m2

Husleje

9238-9810 kr.

Indskud

29100-31200 kr

Ventetid

0 mdr.

Gå til afdelingens hjemmeside

Lignende boliger

Heraklesvej

Heraklesvej 1 - 9, 2 - 22

8960 Randers SØ

Værelser

2

Areal i m2

47-50

Husleje i kr.

3847-4924

Ventetid

0-6 mdr.

Adonisvej, Paderup

Adonisvej 1 - 63, 2 - 62, 81 - 139

8960 Randers SØ

Værelser

2-4

Areal i m2

56-100

Husleje i kr.

5159-8921

Ventetid

6 mdr.-5 år.

Løvenholmvej

Løvenholmvej 16-334, 267-349

8930 Randers NØ

Værelser

2-4

Areal i m2

65-98

Husleje i kr.

5128-8289

Ventetid

3-9 mdr.