Mmmm..... cookies...

Afdeling

Rønnebærvænget, Skovby
799-0

Rønnebærvænget 6, 14, 26, 34
Rønnebærvænget 4, 8, 12, 14, 26, 32. Etage/dør: 1.

Boliginfo

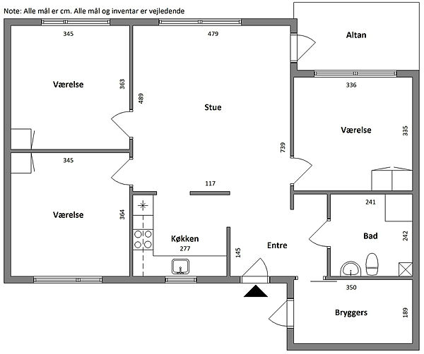
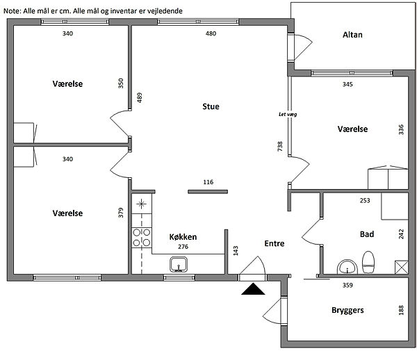
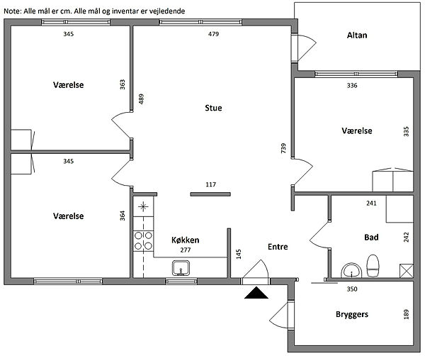
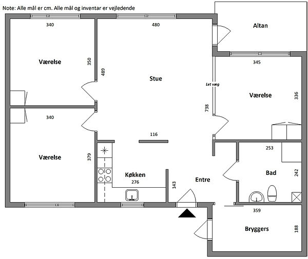
Adresser

Rønnebærvænget 4 - 34,
8464 Galten

Boligtype

Antal boliger

10

Energimærke

D

Andet

Altan: Ja
Elevator: Nej
Husdyr tilladt: Ja

Værelser

4

Størrelser

104-109 m2

Husleje

9643-10055 kr.

Indskud

29300-30800 kr

Ventetid

6 mdr. - 1 år

Gå til afdelingens hjemmeside

Lignende boliger

Kirsebærvænget, Skovby

Kirsebærvænget 1 - 58

8464 Galten

Værelser

2-3

Areal i m2

63-80

Husleje i kr.

5555-7745

Ventetid

2-4 år.

Møllevejen, Stjær

Møllevejen 2 - 10

8464 Galten

Værelser

2

Areal i m2

66

Husleje i kr.

7067

Ventetid

Ikke angivet