Mmmm..... cookies...

Afdeling

Jættehøjparken
1254-0

Jættehøjparken 2, 4, 6, 8, 10, 12

Boliginfo

Adresser

Jættehøjparken 1-15,
7500 Holstebro

Boligtype

Antal boliger

6

Energimærke

Andet

Altan: Nej
Elevator: Nej
Husdyr tilladt: Ja

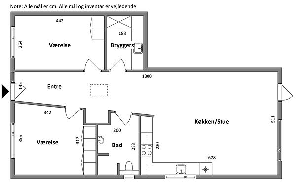
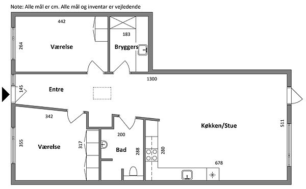
Værelser

3

Størrelser

94-99 m2

Husleje

7339-7687 kr.

Indskud

38000-40100 kr

Ventetid

1 år - 5 år

Gå til afdelingens hjemmeside

Lignende boliger

Hunsballe

Hunsballevej 20-26

7500 Holstebro

Værelser

1-5

Areal i m2

30-110

Husleje i kr.

2231-7655

Ventetid

6 mdr.-4 år.

P.S. Krøyers Vej

P.S. Krøyers Vej 98-218

7500 Holstebro

Værelser

2-4

Areal i m2

63-96

Husleje i kr.

5105-7714

Ventetid

2-6 år.

Straussvej

Straussvej 50-310

7500 Holstebro

Værelser

2-4

Areal i m2

60-95

Husleje i kr.

5192-7992

Ventetid

2-3 år.