Mmmm..... cookies...

Afdeling

Frydenshøj, Norgesvej, Vesterstræde
258-0

Frydenshøj 11
Frydenshøj 9, 31, 39, 67
Frydenshøj 21, 37, 47, 65, 69

Boliginfo

Adresser

Frydenshøj 117,
7700 Thisted

Frydenshøj, Tilsted 3 - 115,
7700 Thisted

Norgesvej 21-59, 30-76,
7700 Thisted

Vestergade 4,
7700 Thisted

Vestergyde 3,
7700 Thisted

Vesterstræde 18-20, 9-21,
7700 Thisted

Vestervang 1-3,
7700 Thisted

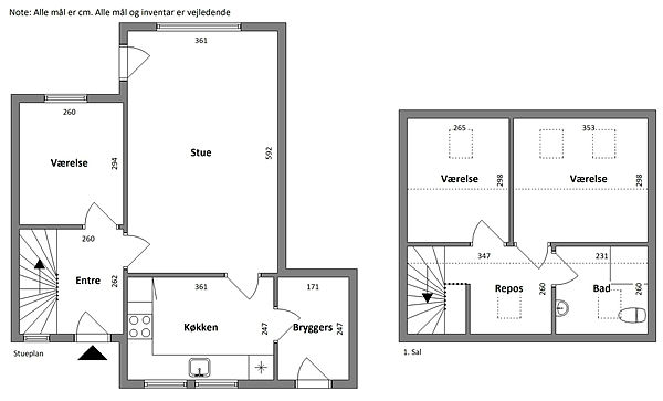
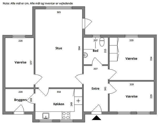
Boligtype

Antal boliger

10

Energimærke

Andet

Altan: Ja
Elevator: Nej
Husdyr tilladt: Ja

Værelser

4

Størrelser

86-96 m2

Husleje

7332-8190 kr.

Indskud

13125-14650 kr

Ventetid

2 mdr. - 9 mdr.

Gå til afdelingens hjemmeside

Lignende boliger

Højtoftevej

Havrevej 1 - 37 m. fl.

7700 Thisted

Værelser

2-4

Areal i m2

58-114

Husleje i kr.

3482-6932

Ventetid

0-6 mdr.

Snedsted, Vilsund, Klitmøller

Bygmarken 15-21, 75-81 m. fl.

7730 Hanstholm

Værelser

2-3

Areal i m2

64-104

Husleje i kr.

5346-7629

Ventetid

0 mdr.-2 år.

Snedsted, Hundborg

Carl Dreschlers Vej 4 - 24 m. fl.

7752 Snedsted

Værelser

2-4

Areal i m2

68-104

Husleje i kr.

5773-8271

Ventetid

0 mdr.-2 år.