Mmmm..... cookies...

Afdeling

Tovværket
1264-0

Grådybet 71F. Etage/dør: 2., 2.
Grådybet 71F. Etage/dør: 1., 4
Grådybet 71H. Etage/dør: 1., 1

Boliginfo

Adresser

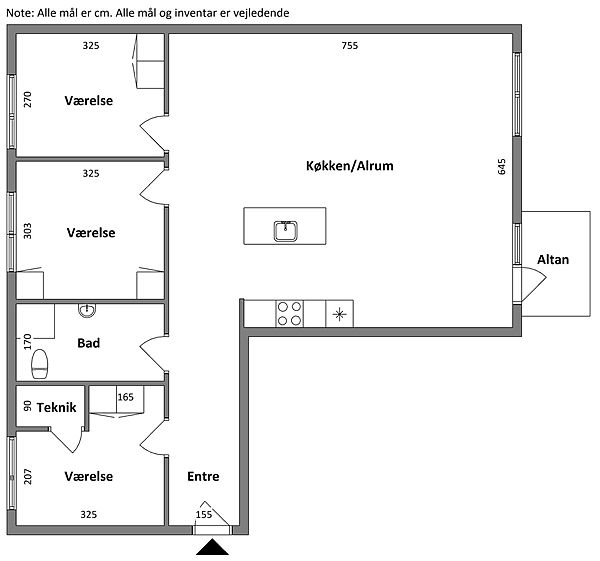
Grådybet 71 F-H,
6700 Esbjerg

Boligtype

Antal boliger

7

Energimærke

Andet

Altan: Nej
Elevator: Ja
Husdyr tilladt: Nej

Værelser

4

Størrelser

103,6-113,07 m2

Husleje

8684-9110 kr.

Indskud

43500-47500 kr

Ventetid

0 mdr. - 1 år

Gå til afdelingens hjemmeside